在池塘边的榕树上,蝉声唱着夏日的交响曲,而在这座被誉为“极致”的豪宅中,则上演着一场属于高端人群的居住盛宴。 设计师们并没有为其披上奢华的金银外衣,而是以独特的设计语言,勾勒出一个充满人文关怀与美学追求的居住空间。

不同于传统意义上的高端户型,这里的设计并非仅仅追求浮夸的装饰或过度的空间利用,而是更注重空间的功能性与舒适度 。每一个细节都经过精心打磨,旨在为高端人群提供一个更优质的生活环境。
这座豪宅的每一处都体现出设计师的用心, 从选材到布局,从色彩搭配到家具选择,都充分考虑到了高端人群的生活方式与需求。这样的设计,不仅提升了居住者的生活质量,也为其带来了无与伦比的居住体验。
>>> 这是一套没有任何缺点的户型,在高端人群中掀起热潮
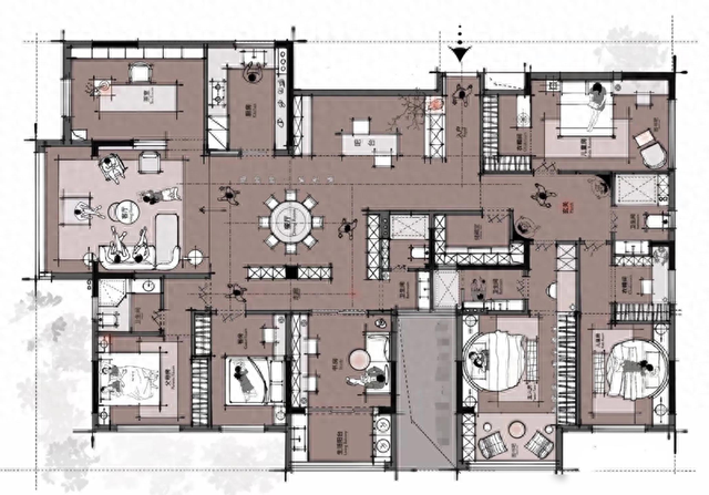
一、空间利用的极致,如何将每个房间规划得当?
南侧配置有四个卧室,家用多 bedrooms
在这个独特的空间中, 我们可以看到设计师是如何充分利用空间的,南侧的四个卧室,不仅满足了家庭成员的居住需求,更为每个卧室提供了充足的自然光照与通风条件。
这些卧室布局合理、功能齐全,无论是休闲、工作还是娱乐,都能在这里找到合适的空间。此外,每个卧室的装修风格各具特色,为整个空间增添了不少生机与活力。
二、布局极致规整,保证了空间的舒适度和实用性
右上角的大开间卧室,适用于多种功能
对于大开间的卧室设计来说,灵活多变的空间使用规划是其魅力所在。 这种设计不仅提供了一个宽敞明亮的居住环境,还为我们提供了无限的可能性。无论是作为主卧、书房还是娱乐室,大开间卧室都能轻松应对。
>>> 在主卧的旁边设计一个独立卫浴,避免了尴尬
在卧室旁边设计一个独立的卫浴空间,不仅提升了空间的私密性和舒适度,也解决了日常生活中的许多便利性问题。 独立卫浴的设计让我们在享受私人空间的同时,也能拥有更为便利的生活体验,无需频繁走出卧室,也不必担心影响他人的休息。
三、拒绝传统的格局,主客分离,空间使用感十足
在传统的住宅设计中,客厅往往与卧室等私密空间相连,给人一种空间利用不充分的感觉。而在现代住宅设计中, 主客分离的设计理念逐渐受到青睐。这样的设计不仅能提高空间的使用效率,还能为家庭提供更多的私密性和舒适度。
主客分离的设计理念强调的是将公共区域与私人空间进行有效地划分, 客厅、餐厅等公共区域与卧室、书房等私人区域相互独立,这样的设计使得居住者在享受家庭生活的同时,也能拥有属于自己的私人空间。
>>> 客厅和餐厅氛围各有千秋,呈现不同的体验感
在现代家居设计中,客厅和餐厅的氛围各有其独特的魅力,它们不仅是居家生活的重要组成部分,更是家居体验感的关键。在客厅,我 们追求的是一种放松、舒适的氛围,而在餐厅,则更注重营造出一种温馨、亲密的用餐体验。
▼客厅的设计极致奢华,体现了主人品味
客厅的氛围营造是重中之重,在这个空间里,我们可以通过选择高档的家居饰品、奢华的家具材质以及精致的装饰艺术品来提升氛围 ,比如一些欧式风格的家具,结合舒适度极高的沙发,让整个空间看上去很贵气,住在这里的业主的品味也高人一等。
▼餐厅的设计更温馨,体现出生活的气息
而餐厅则是家庭聚餐、朋友聚会的重要场所,为了营造出温馨而亲密的用餐氛围, 我们可以选择柔和的灯光、温暖的色调以及舒适的座椅。同时,也可以在餐桌上放置一些精致的餐具和摆设,以提升整体的用餐体验,毕竟这里是家人或者朋友聚餐的地方,尽量不要把它设计得太过于冰冷哦。
四、藏书室的装修体现出总裁式的奢华感,住在这里年薪千万也不违和
在这个空间里,我们可以看到设计师是如何通过合理的布局、精致的材料以及独特的装饰来打造出一个充满奢华感的空间。 高档的书架、舒适的沙发、以及精致的装饰品,无不展现出奢华的气息。
而书房的颜色搭配,则侧重于暗色调,这样的色调选择能够营造出一种稳重而大气的氛围,使整个书房空间更加高贵典雅, 例如深棕色的木质书架,和大地色的窗帘和沙发相得益彰,呈现出一种贵气感。
五、每个细节都体现出豪华的气质,走进房间就被惊艳到了
在这套房子的设计中,我们可以看到设计师是如何在每一个细节中都体现出豪华的气质,每个房间的布局、装饰和家具选择都经过精心考虑,以确保它们能够相互协调,营造出一种高端、奢华的氛围。
无论是华丽的吊灯、精美的艺术品,还是高档的家具,每一个细节都在向我们展示着豪华的生活品质。它们不仅为房间增添了一份精致和美丽,更让人感受到一种无与伦比的奢华享受。
这座极致的高端户型不仅仅是一种住宅,更是一种生活方式的体现。它并没有过度地追求奢华和浮夸,而是以一种低调而奢华的方式,为高端人群提供了一个理想的居住环境。
在这里,我们可以感受到一种与众不同的生活态度,一种追求品质与舒适的生活方式。这种生活方式,正是现代高端人群所追求的,也是这座极致的高端户型所带来的真正价值。
语法规则背了忘,忘了背,是不是特别头疼?英语里那些条条款款,看课本感觉都懂,一开...
郑钦文站在迈阿密硬地球场擦汗时,估计连她自己都没想到首盘能赢得这么利索。 北京时...
极目新闻评论员 屈旌 近日,有网友发布帖子质疑山姆会员商店配送方式不合理,相关图...
人民财讯6月20日电,6月20日,财政部发布的1—5月财政收支数据显示,今年前5...